Bản vẽ xin phép xây dựng Dĩ An gồm
1. Bản Vẽ Xin Giấy Phép Xây Dựng Dĩ An Gồm:
a. Kiến trúc
b. Kết cấu.
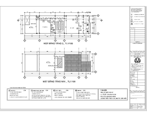
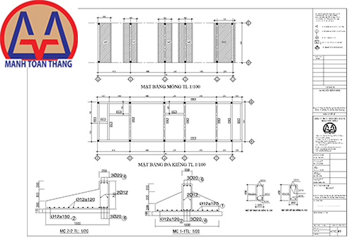
Bên trong bản vẽ kiến trúc và kết cấu có nhiều bản vẽ thể hiện chi tiết công trình, từ mặt bằng, mặt đứng, mặt cắt.
- Bản vẽ mặt bằng công trình, có tỷ lệ 1/100 – 1/500, kèm theo sơ đồ vị trí công trình.
- Bản vẽ mặt bằng các tầng , các mặt đứng, các mặt cắt công trình có tỷ lệ 1/100 – 1/200
- Bản vẽ mặt bằng móng có tỷ lệ 1/100 – 1/200, các chi tiết mặt cắt móng có tỷ lệ 1/50
Bản vẽ xin phép xây dựng Dĩ An
2. Hồ Sơ Xin Giấy Phép Xây Dựng Dĩ An Gồm:
a. Bản thiết kế sơ bộ được đóng dấu của công ty thiết kế và chữ ký của kiến trúc sư, kỹ sư xây dựng trong công ty.
b. Giấy phép kinh doanh của công ty thiết kế.
c. Chứng chỉ hành nghề công ty, kiến trúc sư của người chủ trì thiết kế.
d. Đơn xin cấp phép xây dựng
e. Bản sao quyền sử dụng đất (sổ đỏ), chứng minh có công chứng.
f. Giấy ủy quyền cho nhân viên công ty cấp phép
Hồ sơ xin phép xây dựng Dĩ An
3. Quy Định Mới Về Bản Vẽ Xin Phép Xây Dựng Dĩ An:
Năm 2020 Thị xã Dĩ An lên Thành Phố Dĩ An, quy định cấp phép xây dựng có thay đổi, chủ nhà muốn xây nhà trọ, nhà ở cho thuê phải chuyển mục đích sử dụng từ đất ở sang đất cho thuê.
Quy định mới về bản vẽ xin phép xây dựng Dĩ An
Gọi ngay để được Kỹ Sư miễn phí
CÔNG TY TNHH TMDV MẠNH TOÀN THẮNG
Hotline: 0987 947 486 (Mr.Vũ)
Email: manhtoanthangxaydung@gmail.com
Địa chỉ: 17 DT 743C, Kp. Đông Tân, P. Dĩ An, TP. HCM
Google Maps: Click Tới Mạnh Toàn Thắng



Xem thêm