Tiêu chuẩn bản vẽ xin cấp phép xây dựng Thủ Dầu Một Bình Dương
1. Tiêu chuẩn bản vẽ xin cấp phép xây dựng Thủ Dầu Một Bình Dương
Tiêu chuẩn bản vẽ như sau:
- Sơ đồ vị trí, tỷ lệ: 1/200 - 1/500
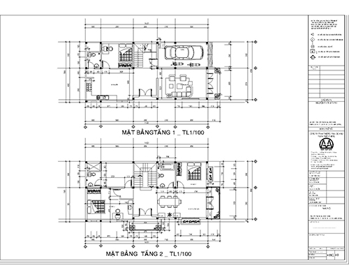
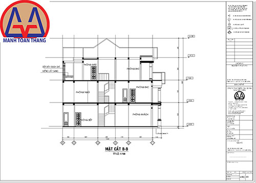
- Mặt bằng trệt, lầu 1, lầu 2, mặt đứng, mặt cắt, mặt bằng móng tỷ lệ:1/100 - 1/200
- Chi tiết hầm cầu, chi tiết móng 1/20 - 1/50.
	
Tiêu chuẩn bản vẽ xin cấp phép xây dựng Thủ Dầu Một, Bình Dương
2. Bản vẽ xin cấp phép xây dựng Thủ Dầu Một Bình Dương cần có:
a. Bản vẽ sơ đồ vị trí đất.
b. Bản vẽ mặt bằng, mặt cắt, mặt đứng.
c. Bản vẽ kết cấu móng, đà kiềng.
d. Bản vẽ cấp thoát nước.
	
Bản vẽ xin cấp phép xây dựng Thủ Dầu Một, Bình Dương
3. Thời Gian Vẽ Bản Vẽ Cấp Phép Xây Dựng Thủ Dầu Một, Bình Dương:
- Khi chủ nhà đã làm việc với công ty xong - chúng tôi sẽ tiến hành vẽ bản vẽ xin giấy phép xây dựng ở Bình Dương. Thời gian là 1 ngày chậm nhất là 2 ngày.
- Trong thời gian 1-2 ngày chúng tôi sẽ hoàn thiện hồ sơ xin giấy phép xây dựng Bình Dương.
	
Thời gian vẽ bản vẽ xin cấp phép xây dựng Thủ Dầu Một, Bình Dương
Nếu bạn đang có nhu cầu tìm kiếm đơn vị am hiểu về bản vẽ xây dựng tại Thủ Dầu Một thì liên hệ chúng tôi.
Cty Mạnh Toàn Thắng chúng tôi chuyên vẽ bản vẽ xin phép xây dựng – thiết kế xây dựng phạm vi toàn tỉnh Bình Dương.
Gọi ngay để được Kỹ Sư miễn phí
CÔNG TY TNHH TMDV MẠNH TOÀN THẮNG
Hotline: 0987 947 486 (Mr.Vũ)
Email: manhtoanthangxaydung@gmail.com
Địa chỉ: 17 DT 743C, Kp. Đông Tân, P. Dĩ An, TP. HCM
Google Maps: Click Tới Mạnh Toàn Thắng
 



Xem thêm